Projet résidentiel
2 appartements réunis, 250m2, Paris 16
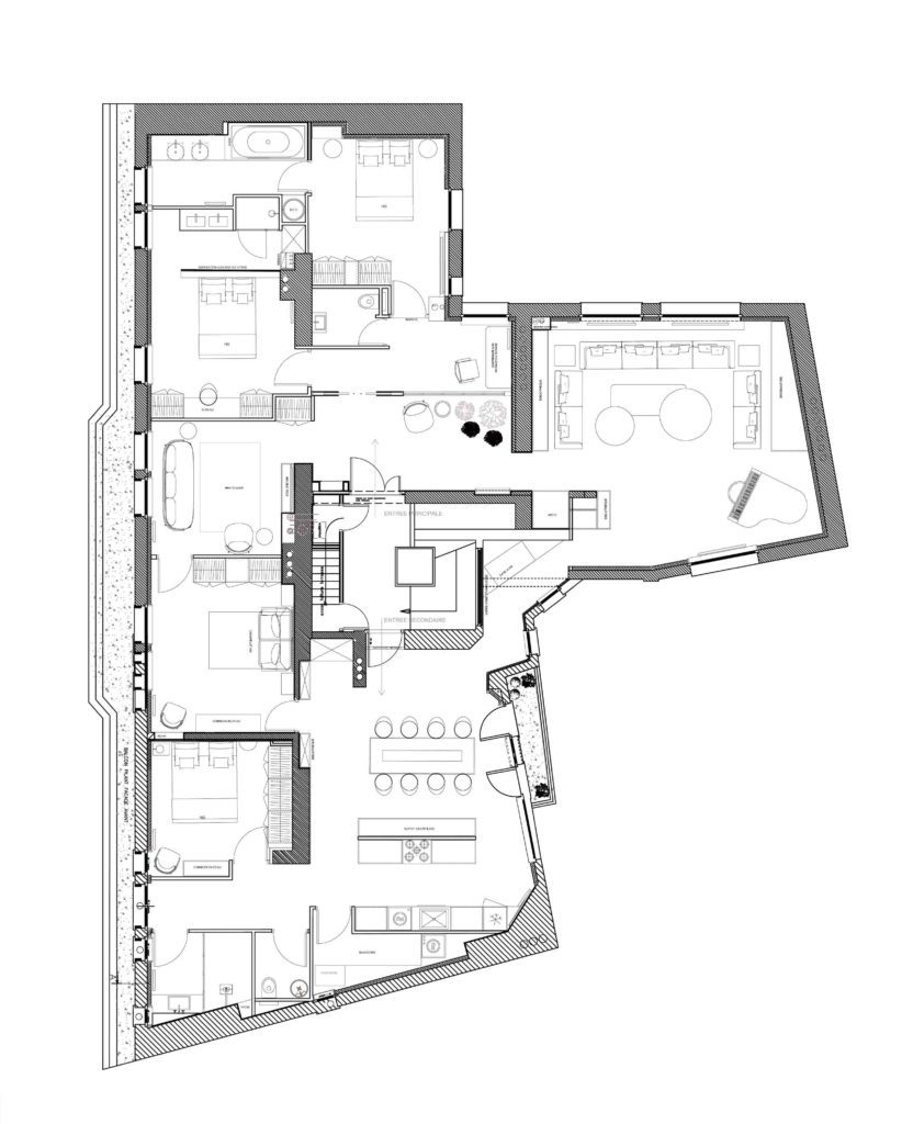
Mission : Pour valoriser son bien à la vente, le propriétaire nous a sollicitées pour concevoir différentes alternatives d'aménagement lui permettant de proposer aux acquéreurs un appartement familial avec 4 chambres.

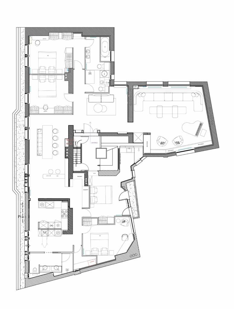
Plan de l'existant





