Projet Jade : Une rénovation qui révèle le potentiel d’un appartement familial
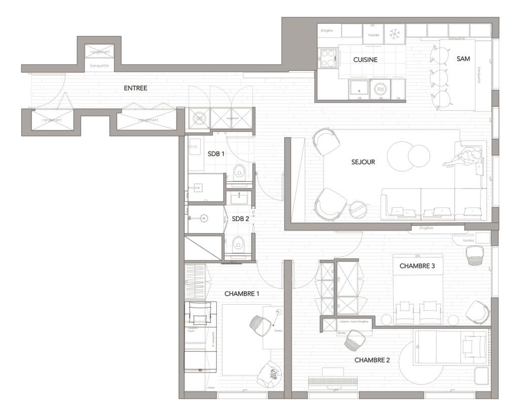
Au cœur du 13ème arrondissement de Paris, l’agence Filigrane Design a repensé intégralement cet appartement de 87 m² situé au 17ème étage, pour en faire un espace à la fois fonctionnel et chaleureux, parfaitement adapté aux besoins d’une famille. La mission ? Une rénovation complète, alliant optimisation de l’espace, aménagements ergonomiques et décoration intérieure pour transformer chaque mètre carré en un lieu de vie harmonieux.


Des espaces repensés
L’ouverture de la cuisine sur le séjour a permis de créer un vaste espace de vie fluide, où cuisine, salon et salle à manger dialoguent en harmonie. Cette redistribution des volumes, associée à une lumière naturelle généreuse, renforce la sensation d’espace et de convivialité. Parallèlement, l’agence a repensé le plan initial pour intégrer une chambre supplémentaire, une salle de bain ainsi qu’une buanderie, optimisant ainsi le quotidien de la famille.
Un cadre élégant et fonctionnel
Le choix des matériaux, la gestion de la lumière naturelle et une palette de couleurs soigneusement étudiée renforcent l’équilibre entre modernité et convivialité. Chaque détail, du mobilier aux finitions, a été pensé pour allier esthétique et praticité, offrant ainsi un projet clé en main où chaque espace trouve sa juste place.
Le résultat ? Un appartement où ergonomie, luminosité et harmonie des couleurs se répondent, pour un cadre de vie à la fois élégant et adapté aux rythmes familiaux.
photos © Ercole Salinaro














